Загрузка

2-к квартира, 42,50 кв.м, 2/3 эт.

Севастополь, Керченская улица, 32

7 000 000

Описание Добавить в избранноеВ избранное

Квартира с характером в самом сердце Севастополя
Есть квартиры «как у всех», а есть — с историей и душой. Эта — как раз такая.

В тихом уголке центра, на ул. Керченская, 32, в доме 1949 года постройки, прячется квартира, которая ждет своего человека. Дом старого фонда — а значит, здесь не просто стены, а настоящая надежность, проверенная временем, и планировки, которые сегодня уже не встретишь.

Квартира расположена на комфортном 2 этаже 3-этажного дома. Всего 9 квартир — камерная атмосфера, где все друг друга знают. Закрытая территория добавляет уюта и спокойствия, а недавно выполненный внешний ремонт дома подчеркивает его ухоженность.

Под окном кухни навес с виноградной лозой, пить кофе с красивым видом можно каждый день



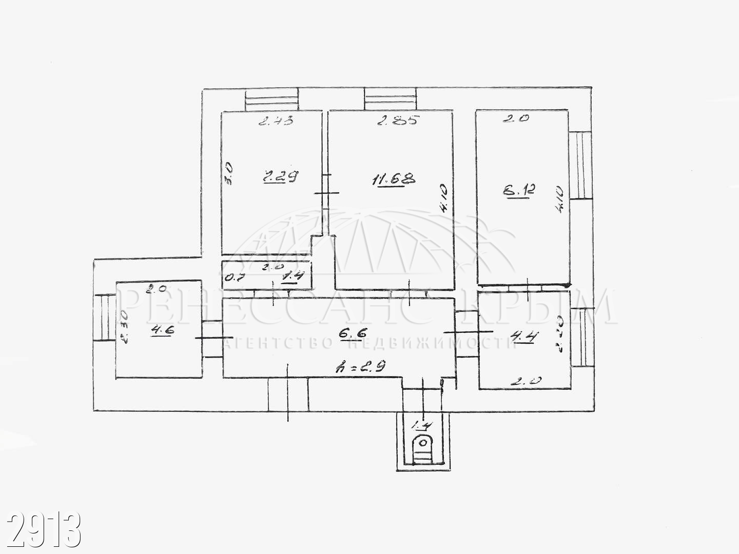
Общая площадь — 42,5 м²
Жилая — 23,6 м²
Окна металлопластиковые
Кондиционер
Металлическая входная дверь
Высота потолков 2,9 м.

Да, квартире нужен ремонт. Но в этом и ее главное преимущество — здесь можно не «переделывать за кем-то», а создать пространство полностью под себя. Оставить дух старого фонда или сделать современный интерьер — решать только вам. Это идеальный холст для дизайнера или человека с воображением.
Рядом есть всё, что нужно для жизни: школы, детские сады, детский парк, а до набережной можно дойти пешком — прогулки у моря станут частью вашей повседневности.

Эта квартира — не для всех. Она для тех, кто ценит атмосферу, необычные планировки и хочет вдохнуть новую жизнь в пространство с историей. Есть подсобное помещение для хранения вещей на 1 этаже дома.
Если вы ищете не просто жилье, а место с характером — возможно, вы его нашли.

Записаться на просмотр
№ объекта:
2913
Кол-во комнат:
2
Этаж:
2
Этажность:
3
Общая площадь:
42,50 м2
Жилая площадь:
23,60 м2
Площадь кухни:
4,40 м2
Ремонт:
Требует ремонта
Отопление:
Центральное
Балкон:
Нет
Санузел:
Совмещенный
Мусоропровод:
Нет
Охрана/Консьерж:
Нет
 
 
Храмцова Анастасия Сергеевна

+7 (978) 747-16-72

Отправить сообщение

Месторасположение